
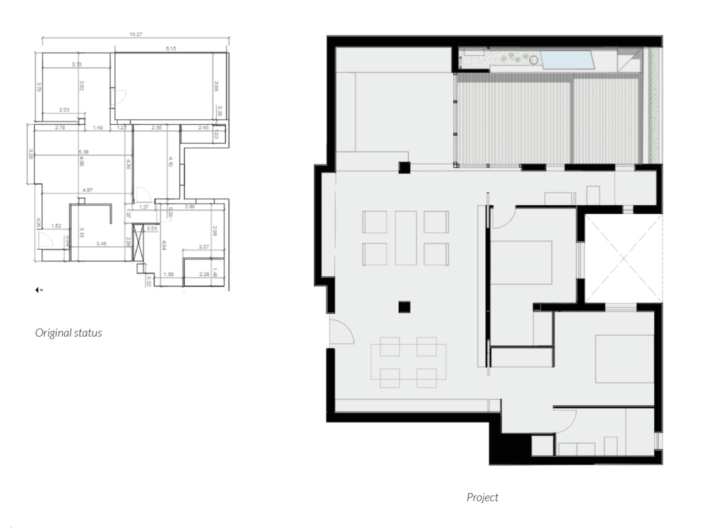
Reforma integral de apartamento en la calle Rioja, en el centro de Sevilla.
La intervención más importante en este apartamento que inicialmente se encontraba en condiciones de amplio deterioro y falta de luz, fue abrir una esquina acristalada a la terraza, que conecta la cocina, el salón y la terraza, aporta mucha luz al espacio profundo del salón y permite una hermosa vista de la torre de la catedral de la Giralda. La terraza también se rediseña para convertirla en un espacio central de la vida cotidiana, aprovechando las buenas condiciones climáticas de Sevilla, utilizando vegetación, agua y un toldo de sombra.
Manuel Silva Zurita