[PROYECTOS]| Casa Montaraz

Reforma y ampliación de vivienda existente en Espartinas, Sevilla.

En ejecución.


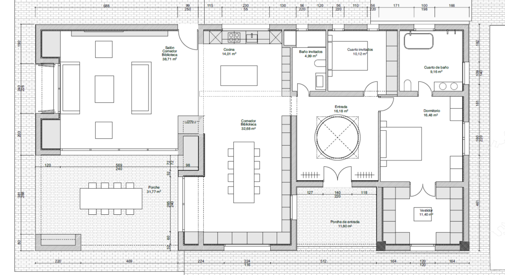
Planos
Créditos

Zurita Studio


e-mail
+34 670560897
c. Goles 11A
41002 Sevilla
linkedin facebook pinterest youtube rss twitter instagram facebook-blank rss-blank linkedin-blank pinterest youtube twitter instagram