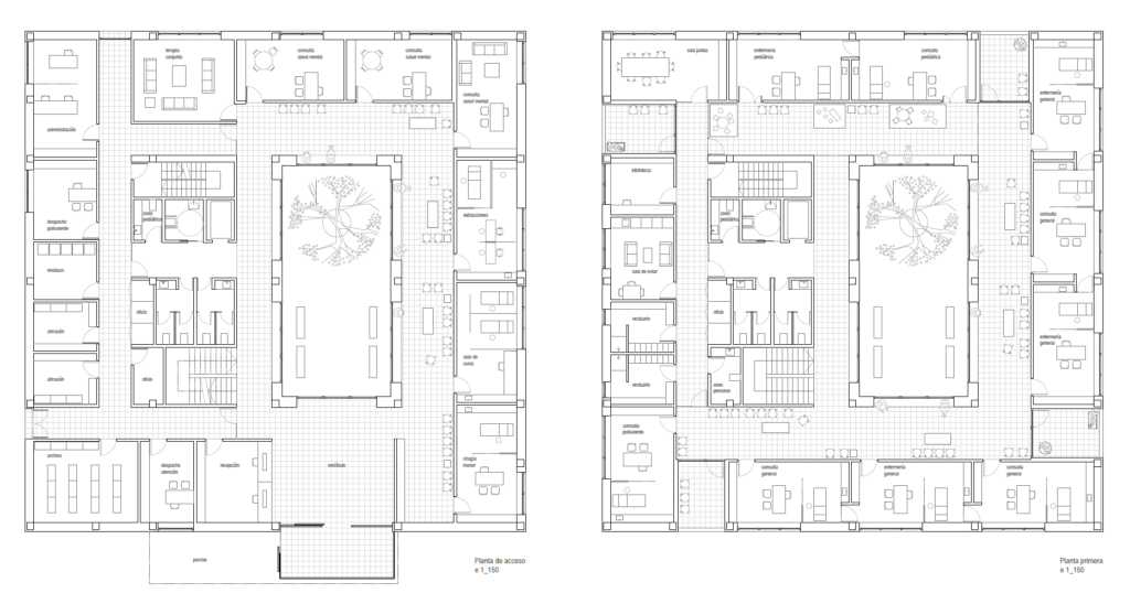
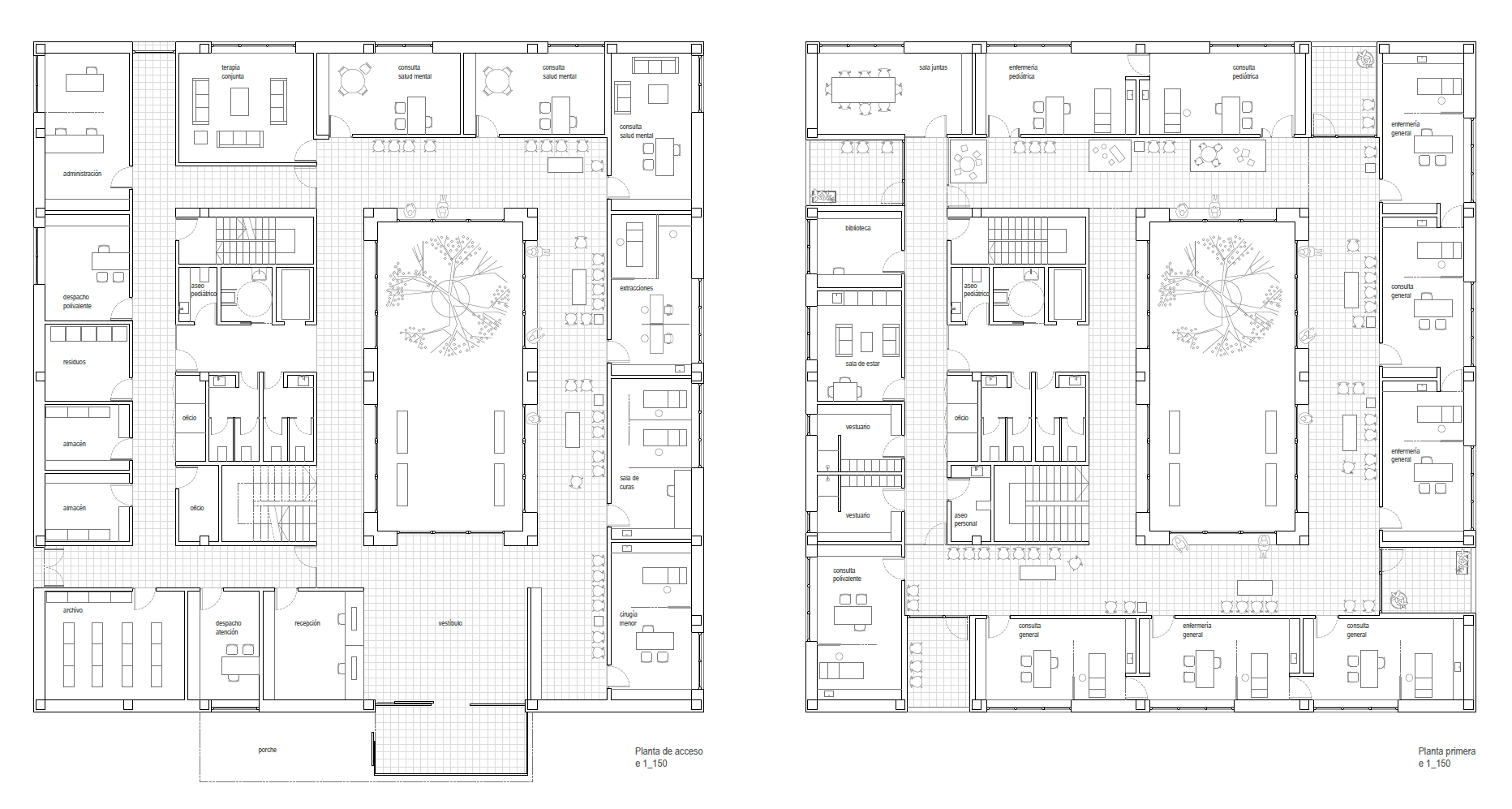
[PROYECTOS]| Centro de Salud Peguera

Concurso realizado junto a Berenice Morán y Javier Morán para un centro de salud en Peguera, Mallorca.


Planos
Créditos

Zurita Studio, Berenice Morán, Javier Morán


e-mail
+34 670560897
c. Goles 11A
41002 Sevilla
linkedin facebook pinterest youtube rss twitter instagram facebook-blank rss-blank linkedin-blank pinterest youtube twitter instagram