[PROYECTOS]| Hotel Ramón y Cajal

Proyecto Básico y Estudio de viabilidad para un hotel en calle Ramón y Cajal, Sevilla.


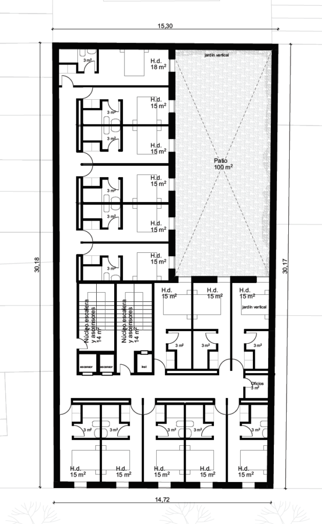
Planos
Créditos

Zurita Studio, Kalibra Arquitectura, CHS Arquitectos


e-mail
+34 670560897
c. Goles 11A
41002 Sevilla
linkedin facebook pinterest youtube rss twitter instagram facebook-blank rss-blank linkedin-blank pinterest youtube twitter instagram