[PROYECTOS]| Las Pajanosas

Diseñada para integrarse de manera respetuosa y funcional en el paisaje andaluz, esta vivienda es un ejercicio de diálogo entre la arquitectura contemporánea, técnicas constructivas locales y el entorno natural. Situada en una parcela elevada, entre alcornoques y afloramientos rocosos, esta vivienda responde a las características únicas del lugar, priorizando la sostenibilidad, la discreción visual y una conexión íntima con el terreno.

La Implantación: entre encinas

La posición de la casa fue definida cuidadosamente para respetar y preservar las encinas existentes, que forman parte esencial del carácter del paisaje. La vivienda ocupa el espacio disponible en la parte alta de la parcela, adaptándose a las condiciones naturales. La vivienda, en una sola planta, posee una cubierta ajardinada que permite una continuidad visual desde la parte alta del monte, minimizando el impacto paisajístico.

  • Diálogo con el entorno: Los volúmenes de la casa se posicionan estratégicamente para integrarse con el terreno y evitar impactos en los árboles circundantes.
  • Sensibilidad ecológica: Esta decisión no solo conserva la vegetación nativa, sino que también enriquece la relación visual entre los espacios interiores y el paisaje exterior.

Excavación y Minimización del Impacto Visual

Uno de los principios fundamentales del diseño fue reducir el impacto visual de la construcción. Para lograrlo, la casa se sitúa en una zona excavada en la roca, lo que permite que su perfil quede bajo la línea del horizonte natural.

  • Discreción en el paisaje: Desde la distancia, la vivienda apenas es perceptible, mimetizándose con las tonalidades de la roca y la vegetación.
  • Técnica de excavación: Se realizó un vaciado controlado para acomodar los espacios interiores, creando un volumen semi-enterrado.
  • Conexión con el terreno: Las paredes excavadas, especialmente en el patio trasero, revelan la textura y la composición de la roca, estableciendo una relación directa entre la arquitectura y la geología del lugar.

Organización Espacial: Una Dualidad entre el Sur y el Norte

La vivienda se organiza según una lógica dual, donde la orientación y la función de los espacios juegan un papel clave en la experiencia del habitar.

Zonas Públicas: Abiertas al Sur y al Paisaje

  • Orientación solar: Las áreas públicas, como la sala de estar, el comedor y la cocina, se orientan al sur, maximizando la entrada de luz natural y las vistas panorámicas hacia el paisaje circundante.
  • Conexión visual: Los ventanales enmarcan el entorno y la piscina, permitiendo que la naturaleza sea parte integral del diseño interior.
  • Eficiencia energética: La orientación optimiza la ganancia solar pasiva en invierno, mientras que elementos como voladizos o aleros controlan la radiación directa en verano.

Zonas Privadas: Resguardo en el Patio Excavado

  • Refugio en la roca: Las habitaciones y zonas privadas se organizan en torno a un patio excavado en la parte trasera, al norte, donde el terreno actúa como un protector térmico y acústico.
  • Intimidad y frescura: Este patio no solo proporciona un espacio exterior privado, sino que también regula la temperatura interior de manera natural.
  • Iluminación controlada: Los muros de roca reflejan la luz de manera sutil, creando una atmósfera tranquila y acogedora en los espacios privados.

Materialidad y Relación con el Lugar

La materialidad de la casa refuerza su vínculo con el entorno, utilizando una paleta de materiales locales y acabados que dialogan con la tierra, la vegetación y la piedra.

  • Roca natural: La excavación deja expuestas las paredes de roca, que se convierten en un elemento estructural y estético central del proyecto.
  • Hormigón y cal: Estos materiales complementan la solidez de la roca, aportando texturas cálidas y una sensación de modernidad en contraste con la rusticidad del terreno.
  • Tonalidades neutras: Los acabados exteriores reflejan los colores naturales del paisaje, desde los grises de la roca hasta los verdes y marrones de los alcornoques.

Sostenibilidad y Eficiencia

La Casa en Las Pajanosas no solo busca integrarse en el paisaje, sino también operar de manera eficiente y sostenible.

  • Ventilación cruzada: La disposición de los espacios favorece la circulación natural del aire, reduciendo la necesidad de sistemas mecánicos de climatización.
  • Aprovechamiento térmico: La excavación en el terreno proporciona protección solar donde se necesita, manteniendo interiores frescos en verano y cálidos en invierno.
  • Gestión del agua: El diseño incluye sistemas de recogida y almacenamiento de agua de lluvia, que se utiliza para riego y otros fines, siendo parte fundamental la cubierta vegetal ajardinada.

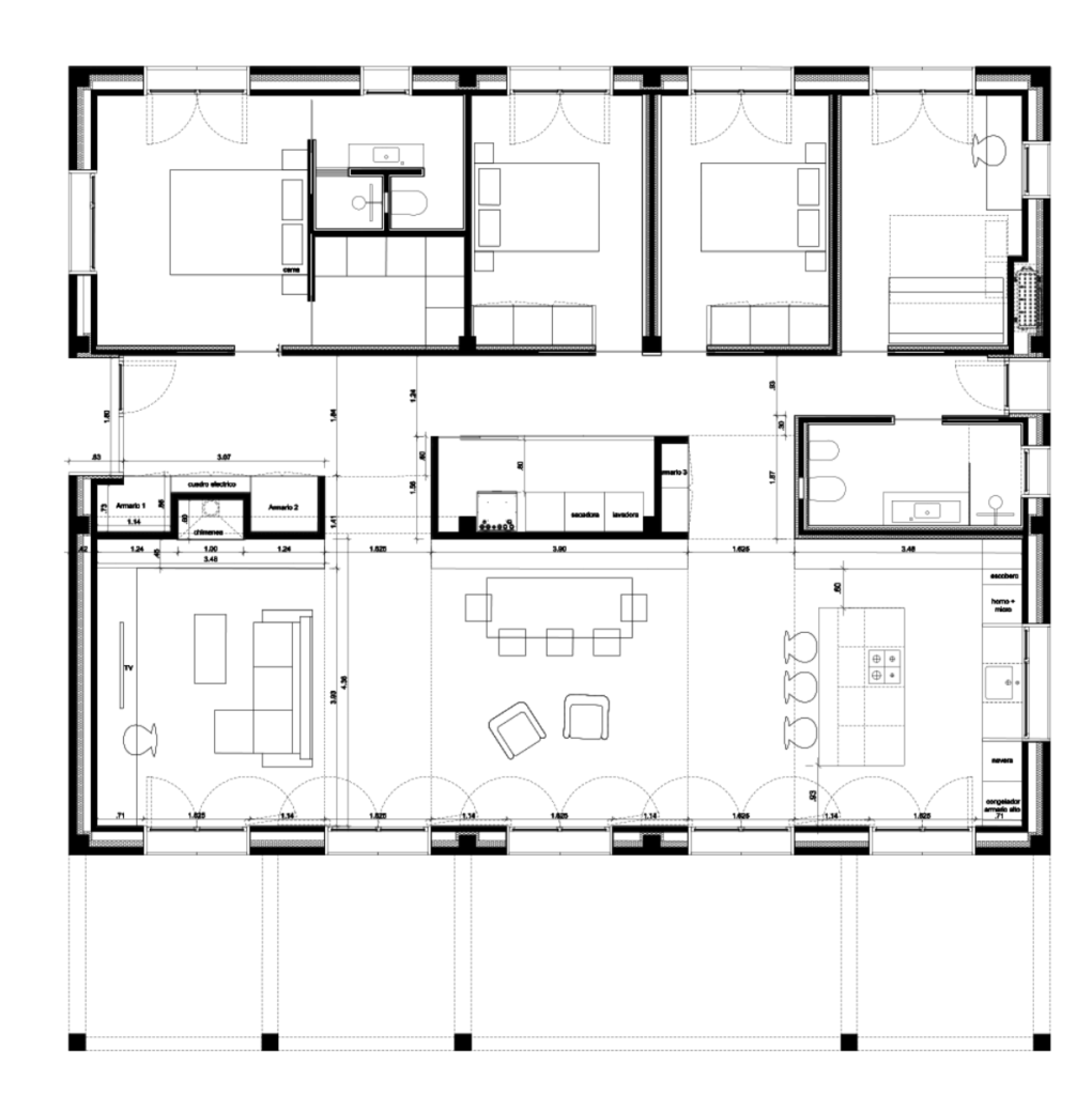
Planos
Créditos

Zurita studio + Kalibra Arquitectura


e-mail
+34 670560897
c. Goles 11A
41002 Sevilla
linkedin facebook pinterest youtube rss twitter instagram facebook-blank rss-blank linkedin-blank pinterest youtube twitter instagram