
Accésit Premios COAS Arquitectura y Sociedad 2023 cat. Internacional
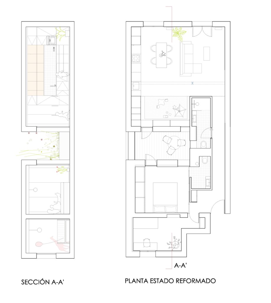
Reforma integral de apartamento en Avenida de la Reina Victoria_ El Madrid de 2021 en que nace la pequeña Martina es una jungla inmobiliaria. Un mercado con los precios de los alquileres por las nubes y dominado por una gentrificación rampante. En este contexto (y con una niña en camino) Mattia y Carmen deciden comprar y reformar un piso en Avenida de la Reina Victoria.
El proyecto no intenta negar esta realidad. Los metros cuadrados son valiosos y se aprovechan al máximo. Todo pasa por una comprensión de las micro actividades actuales y futuras, ligadas al crecimiento de la pequeña Martina, y las traslada en espacios de usos específicos pero también informales. De esta manera, convertimos una distribución especulativa en optimizada, adecuada a las necesidades actuales y futuras de esta joven familia.
La nueva distribución concilia de forma clara la crianza y desarrollo de un bebé y la vida adulta de sus padres. Se consigue a través de la diferenciación de dos áreas; una de noche, tranquila y apartada, que contiene el dormitorio de Martina junto al de los padres; y una social, centro de la vida diaria, del teletrabajo y que puede utilizarse también con amigos sin molestar el descanso del bebé. Esta se formaliza en un gran espacio abierto de configuración flexible, entre la fachada a la calle y el patio, que contiene el salón, la cocina abierta y un nook de actividades evolutivas (juegos/estudio/lectura/invitados) pensado para acoger las necesidades cambiantes de la familia.
La zona de noche y la zona social se articulan a través de dos espacios clave que enriquecen el proyecto y ofrecen recorridos alternativos entre los diferentes ambientes. Estos son el patio, que actúa como comedor de verano y que permite la ventilación cruzada del piso; y un pasillo completamente panelado de madera y de carácter cálido, donde imaginamos a Martina dar sus primeros pasos.
Accésit Premios COAS Arquitectura y Sociedad 2023 cat. Internacional
Arquitectura: Zurita studio + Kalibra Arquitectura
Arquitecto: Manuel Silva Zurita, Simone Lorenzon, Valeria Polato